| CGC #1515288 |
Chapman’s Construction builds homes customized to our clients' needs. We are actively seeking new residential construction opportunities and would love to work with you. Our company has built over 1,000 custom homes throughout the state of Florida.
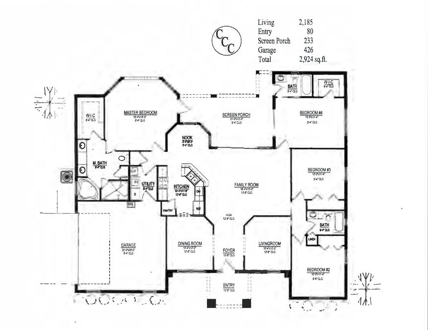
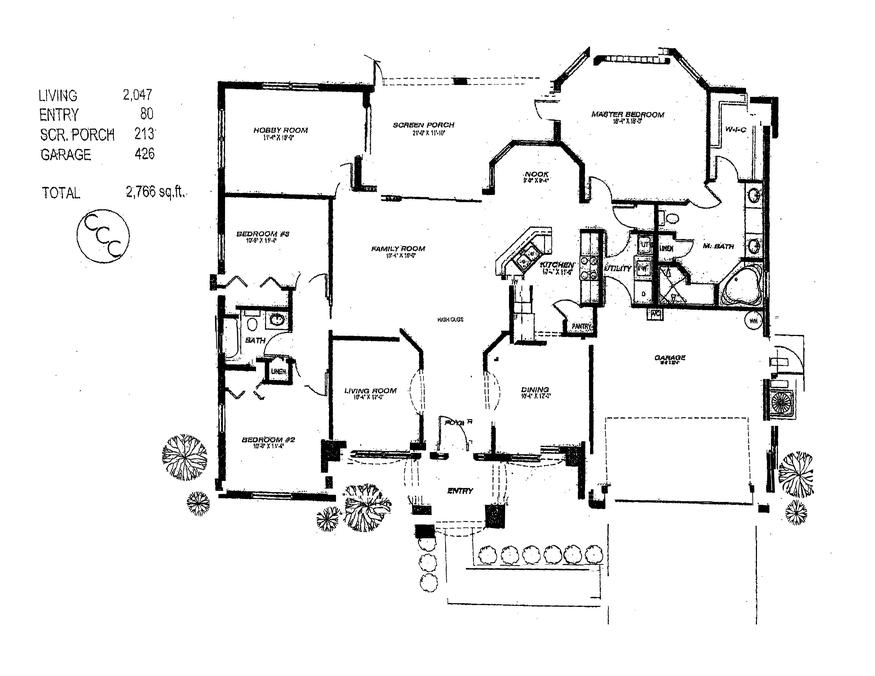
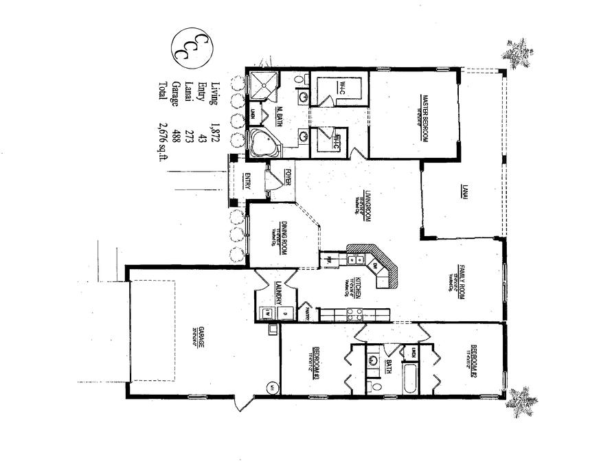
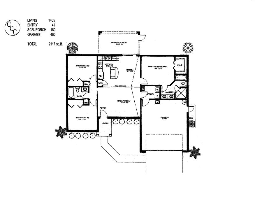
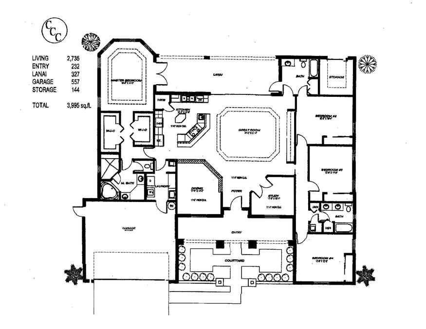
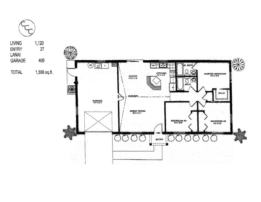
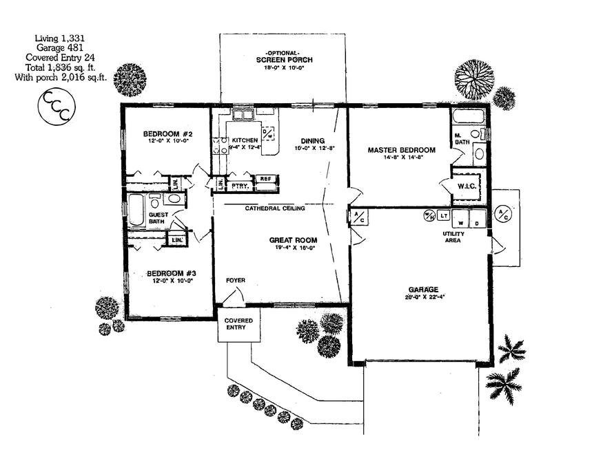
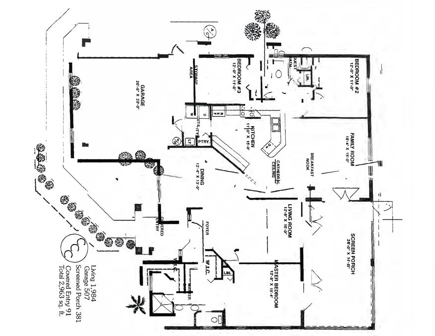
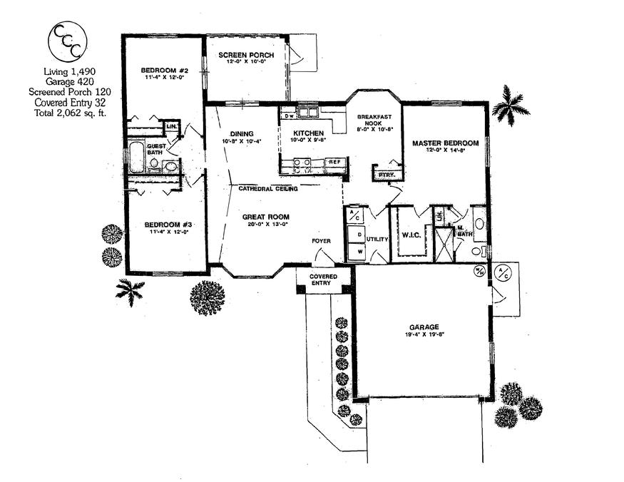
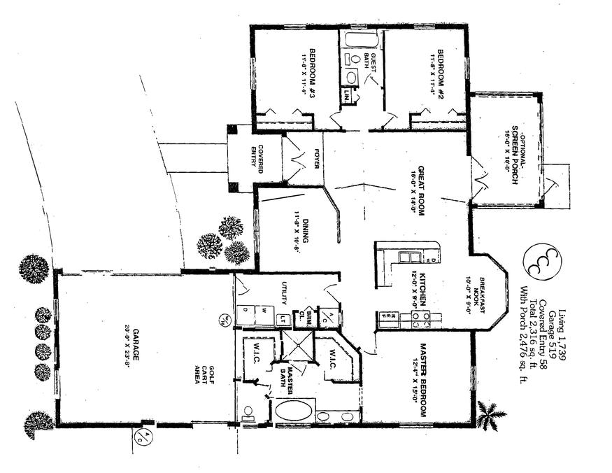
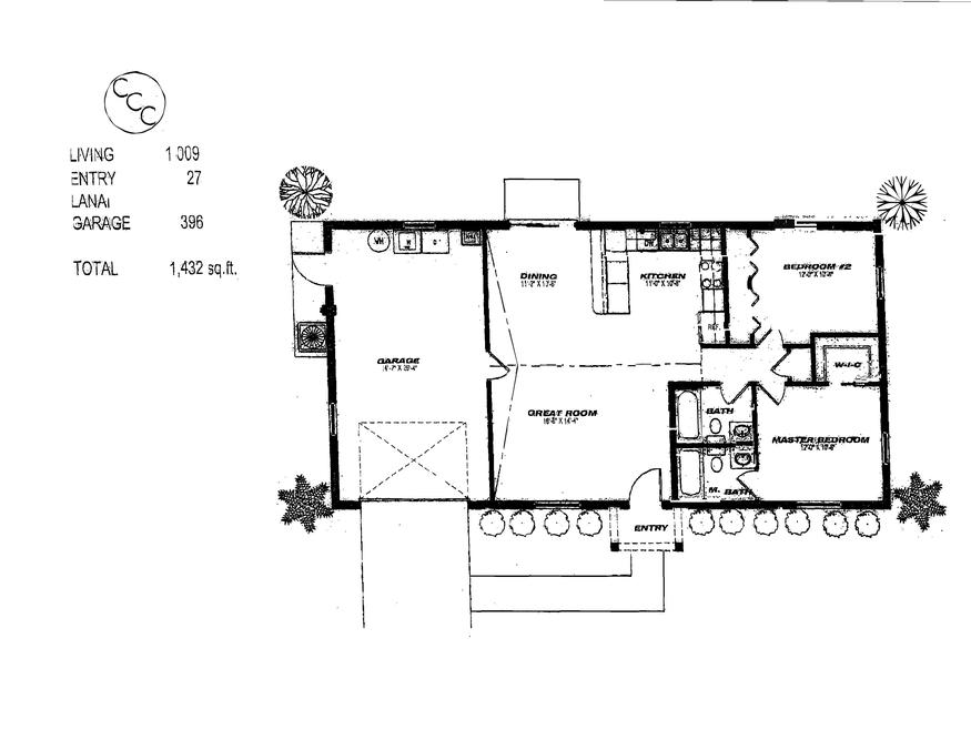
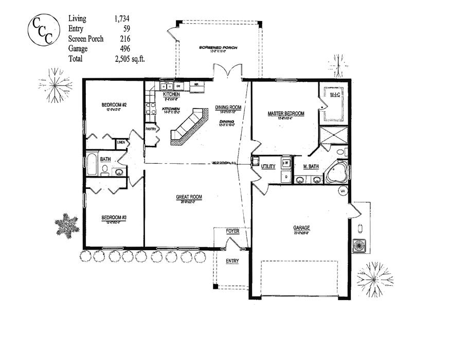
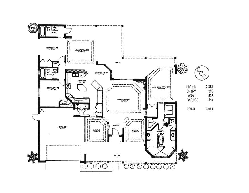
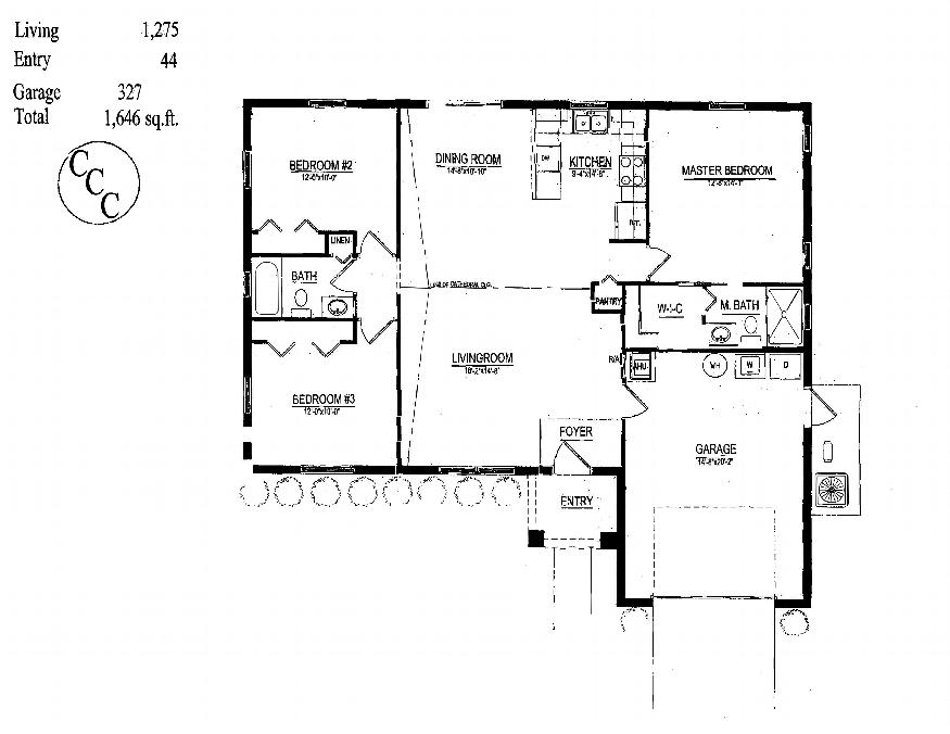
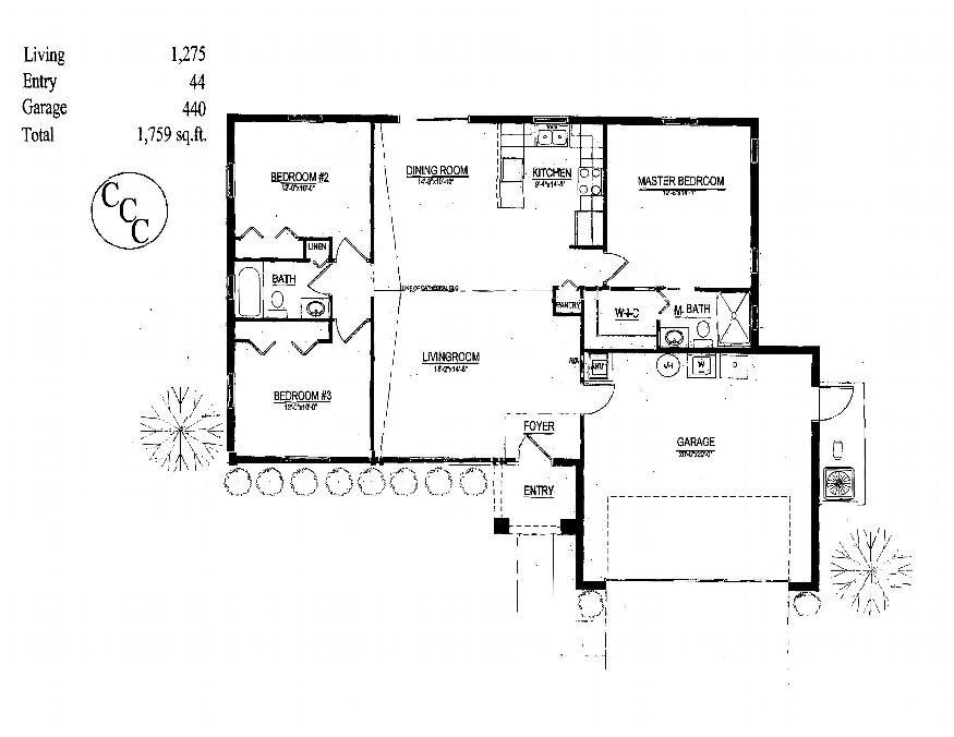
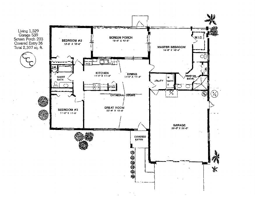
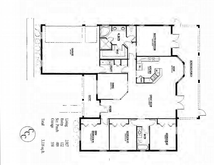
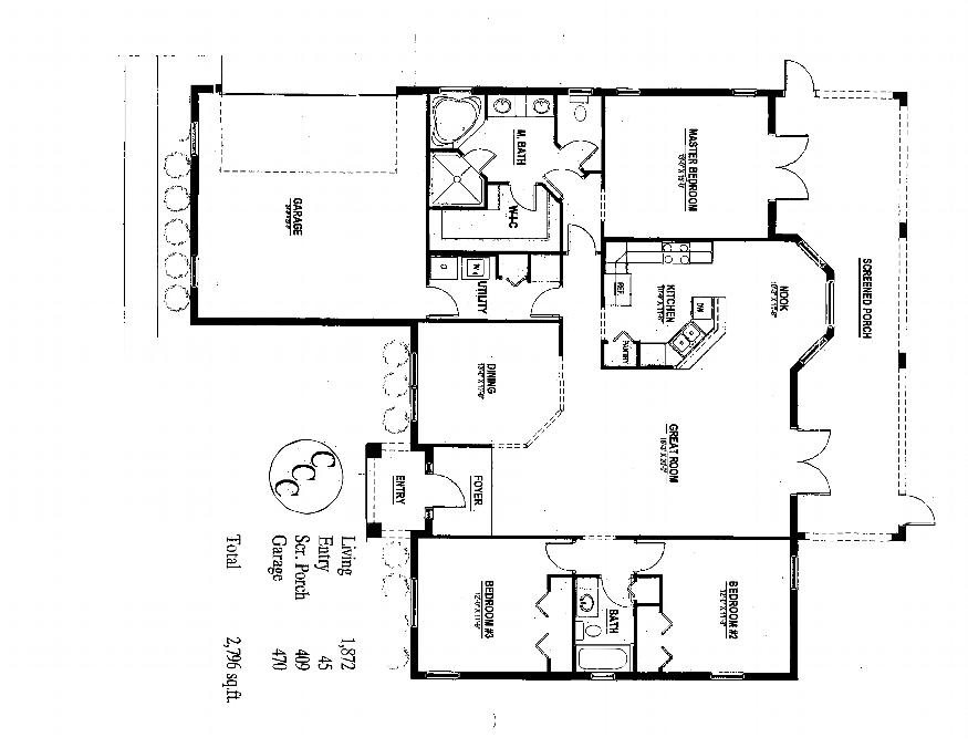
Whether you already have blueprints for your home or need guidance finding the a draftsman and engineer, our team is ready to assist. We have a selection of floor plans available to guide the way and provide a starting point for customization.
The Eagle
This 2800 sq ft. spec home was completed Summer 2023 and was a joy to construct and to bring our vision of understated Florida charm to life.
Ninth & Oak at The Country Club of Sebring
24 luxury golf course villas. Each 1300 sq ft. villa features a full master suite, guest bedroom, and Florida room overlooking the Country Club of Sebring














































| Powered By: MonsterPanel - Designed By: Special Edition Studios | 2025 Chapman's Construction Company | Privacy Policy | Terms & Conditions |